Moyle Road, Milford, Co. Donegal, F92RXW8
€125,000
- BER No:800909400
- Energy Performance:528.25 kWh/m2/yr
- Available From:Immediately
About this property
Description
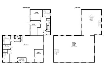
Two storey property within walking distance of all amenities in the town. Mains water, sewerage and electricity. O.F.C.H. Milford town has numerous amenities including National School, two second level schools, library, post office, Supermarket, minimarket and independent shops, churches and medical centre. Commercial building extending to Circa 300 sq m within walking distance of town and all amenities. Current rental income of â?¬9,200 per annum. Accommodation Entrance hall 2.65m x 1.30m Open Space used as Creche 10.45m x 8.30m Kitchen 2.76m x 2.42m Sink and worktop with fitted units. Store 2.42m x 1.40m Office space 3.94m x 2.68m Office Space 2 4.30m x 3.12m Office No 3 3.80m x 3.29m Shower room 2.64m x 2.38m First floor - Storage space/Office space 12.67m x 8.30m First floor - Storage space/Office space 8.13m x 6.28m OutsideProperty has parking to front.
Standard features
The local area
The local area
Local schools and transport

Learn more about what this area has to offer.
School Name | Distance | Pupils | |||
|---|---|---|---|---|---|
| School Name | Scoil Mhuire Milford | Distance | 590m | Pupils | 219 |
| School Name | Portlean National School | Distance | 3.7km | Pupils | 24 |
| School Name | Drumman National School | Distance | 4.9km | Pupils | 64 |
School Name | Distance | Pupils | |||
|---|---|---|---|---|---|
| School Name | Brownknowe National School | Distance | 5.6km | Pupils | 53 |
| School Name | Cranford National School | Distance | 5.8km | Pupils | 48 |
| School Name | Kerrykeel National School | Distance | 6.2km | Pupils | 57 |
| School Name | Ayr Hill National School | Distance | 6.5km | Pupils | 32 |
| School Name | Scoil Mhuire Ramelton | Distance | 6.6km | Pupils | 200 |
| School Name | Kilmacrennan National School | Distance | 8.4km | Pupils | 228 |
| School Name | Devlinreagh National School | Distance | 9.4km | Pupils | 34 |
School Name | Distance | Pupils | |||
|---|---|---|---|---|---|
| School Name | Loreto Community School | Distance | 780m | Pupils | 807 |
| School Name | Mulroy College | Distance | 840m | Pupils | 628 |
| School Name | Errigal College | Distance | 13.9km | Pupils | 547 |
School Name | Distance | Pupils | |||
|---|---|---|---|---|---|
| School Name | Coláiste Ailigh | Distance | 14.8km | Pupils | 321 |
| School Name | St Eunan's College | Distance | 15.2km | Pupils | 1014 |
| School Name | Loreto Secondary School, Letterkenny | Distance | 15.4km | Pupils | 944 |
| School Name | Scoil Mhuire Secondary School | Distance | 16.1km | Pupils | 875 |
| School Name | Crana College | Distance | 16.2km | Pupils | 604 |
| School Name | Coláiste Chineál Eoghain | Distance | 16.9km | Pupils | 17 |
| School Name | The Royal And Prior School | Distance | 24.4km | Pupils | 611 |
Type | Distance | Stop | Route | Destination | Provider | ||||||
|---|---|---|---|---|---|---|---|---|---|---|---|
| Type | Bus | Distance | 180m | Stop | Milford | Route | 974 | Destination | Glen | Provider | Patrick Gallagher Travel |
| Type | Bus | Distance | 180m | Stop | Milford | Route | 974 | Destination | Main Street | Provider | Patrick Gallagher Travel |
| Type | Bus | Distance | 830m | Stop | Mulroy Court | Route | 974 | Destination | Main Street | Provider | Patrick Gallagher Travel |
Type | Distance | Stop | Route | Destination | Provider | ||||||
|---|---|---|---|---|---|---|---|---|---|---|---|
| Type | Bus | Distance | 1.0km | Stop | Mulroy Court | Route | 974 | Destination | Glen | Provider | Patrick Gallagher Travel |
| Type | Bus | Distance | 5.9km | Stop | Coylin Court | Route | 974 | Destination | Glen | Provider | Patrick Gallagher Travel |
| Type | Bus | Distance | 5.9km | Stop | Coylin Court | Route | 974 | Destination | Main Street | Provider | Patrick Gallagher Travel |
| Type | Bus | Distance | 6.0km | Stop | Cranford | Route | 974 | Destination | Glen | Provider | Patrick Gallagher Travel |
| Type | Bus | Distance | 6.0km | Stop | Cranford | Route | 974 | Destination | Main Street | Provider | Patrick Gallagher Travel |
| Type | Bus | Distance | 6.0km | Stop | Kerrykeel | Route | 973 | Destination | Baile Láir | Provider | Tfi Local Link Donegal Sligo Leitrim |
| Type | Bus | Distance | 6.0km | Stop | Kerrykeel | Route | 973 | Destination | Kerrykeel | Provider | Tfi Local Link Donegal Sligo Leitrim |
BER Details
BER No: 800909400
Energy Performance Indicator: 528.25 kWh/m2/yr
Statistics
- 16/07/2024Entered
- 4,155Property Views
Daft ID: 519771757
Contact Agent
